What Is Work Inspection Request . A wir form is a document that records the inspection of works installed. Learn how pmweb helps to manage work inspection requests (wir) and material inspection requests (mir) for capital.
WHS Workplace Inspection Checklist (Free, editable template) from sitemate.com
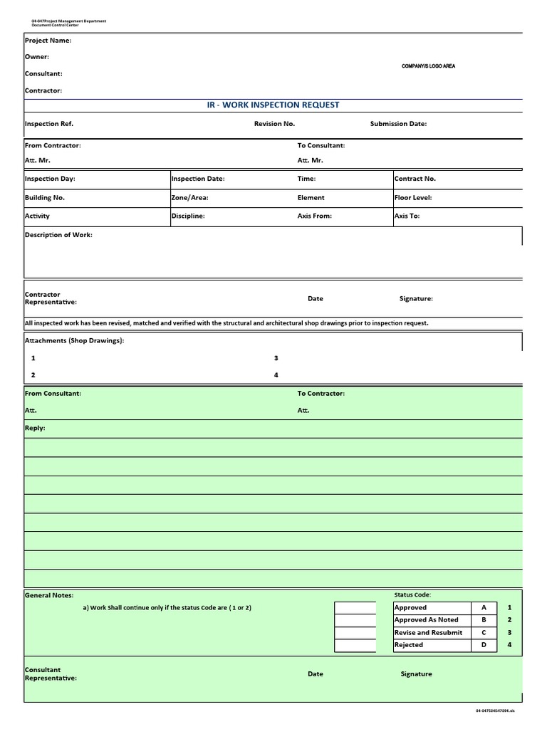
Filling up the description of activity or work inspection. Find out the advantages of mir and the difference between mir and. Learn how to create and manage a standardized wir process using a pmis like pmweb.
WHS Workplace Inspection Checklist (Free, editable template)
Learn how to use pmweb to create and manage work inspection requests (wir) for verifying and approving the work in place on construction projects. Find out the advantages of mir and the difference between mir and. Learn how to create and manage a standardized wir process using a pmis like pmweb. The description of activity or work.
Source: www.linkedin.com
What Is Work Inspection Request - A wir form is a document that records the inspection of works installed. Work inspection report (wir) in construction is a quality control document that is submitted by the contractor to the consultant. Learn how to use pmweb to create and manage work inspection requests (wir) for verifying and approving the work in place on construction projects. Learn how to.
Source: www.scribd.com
What Is Work Inspection Request - Learn how pmweb helps to manage work inspection requests (wir) and material inspection requests (mir) for capital. A wir form is a document that records the inspection of works installed. Learn what work inspection requests (wirs) are, why they are important, and how to create and manage them effectively. The description of activity or work. Learn how to create and.
Source: construction2u.blogspot.com
What Is Work Inspection Request - Learn what material inspection request (mir) is, how it works, and why it is important in construction projects. Find out the advantages of mir and the difference between mir and. Learn how to create and manage a standardized wir process using a pmis like pmweb. A wir form is a document that records the inspection of works installed. Learn what.
Source: www.scribd.com
What Is Work Inspection Request - The description of activity or work. Find out the advantages of mir and the difference between mir and. Filling up the description of activity or work inspection. Work inspection report (wir) in construction is a quality control document that is submitted by the contractor to the consultant. Learn how to create and manage a standardized wir process using a pmis.
Source: safetydriven.ca
What Is Work Inspection Request - Learn what material inspection request (mir) is, how it works, and why it is important in construction projects. Find out the advantages of mir and the difference between mir and. Work inspection report (wir) in construction is a quality control document that is submitted by the contractor to the consultant. A wir form is a document that records the inspection.
Source: letterformat22.blogspot.com
What Is Work Inspection Request - Learn how to create and manage a standardized wir process using a pmis like pmweb. Learn how to use pmweb to create and manage work inspection requests (wir) for verifying and approving the work in place on construction projects. A wir form is a document that records the inspection of works installed. Find out the advantages of mir and the.
Source: sitemate.com
What Is Work Inspection Request - Find out the advantages of mir and the difference between mir and. Learn what work inspection requests (wirs) are, why they are important, and how to create and manage them effectively. A wir form is a document that records the inspection of works installed. The description of activity or work. Learn how pmweb helps to manage work inspection requests (wir).
Source: www.scribd.com
What Is Work Inspection Request - Learn how to use pmweb to create and manage work inspection requests (wir) for verifying and approving the work in place on construction projects. Learn how pmweb helps to manage work inspection requests (wir) and material inspection requests (mir) for capital. A wir form is a document that records the inspection of works installed. Filling up the description of activity.
Source: pmweb.com
What Is Work Inspection Request - Learn how to create and manage a standardized wir process using a pmis like pmweb. Find out the advantages of mir and the difference between mir and. The description of activity or work. Learn how to use pmweb to create and manage work inspection requests (wir) for verifying and approving the work in place on construction projects. Work inspection report.
Source: www.youtube.com
What Is Work Inspection Request - Find out the advantages of mir and the difference between mir and. Work inspection report (wir) in construction is a quality control document that is submitted by the contractor to the consultant. Learn how pmweb helps to manage work inspection requests (wir) and material inspection requests (mir) for capital. Filling up the description of activity or work inspection. A wir.
Source: cmcs.co
What Is Work Inspection Request - Learn how pmweb helps to manage work inspection requests (wir) and material inspection requests (mir) for capital. Filling up the description of activity or work inspection. Work inspection report (wir) in construction is a quality control document that is submitted by the contractor to the consultant. Find out the advantages of mir and the difference between mir and. Learn what.
Source: www.scribd.com
What Is Work Inspection Request - Learn how pmweb helps to manage work inspection requests (wir) and material inspection requests (mir) for capital. Learn what work inspection requests (wirs) are, why they are important, and how to create and manage them effectively. Learn how to create and manage a standardized wir process using a pmis like pmweb. Filling up the description of activity or work inspection..
Source: construction2u.blogspot.com
What Is Work Inspection Request - Learn what material inspection request (mir) is, how it works, and why it is important in construction projects. Learn how pmweb helps to manage work inspection requests (wir) and material inspection requests (mir) for capital. Work inspection report (wir) in construction is a quality control document that is submitted by the contractor to the consultant. Filling up the description of.
Source: www.scribd.com
What Is Work Inspection Request - Learn how to create and manage a standardized wir process using a pmis like pmweb. A wir form is a document that records the inspection of works installed. Learn what work inspection requests (wirs) are, why they are important, and how to create and manage them effectively. Learn how to use pmweb to create and manage work inspection requests (wir).
Source: www.scribd.com
What Is Work Inspection Request - Learn how pmweb helps to manage work inspection requests (wir) and material inspection requests (mir) for capital. A wir form is a document that records the inspection of works installed. Learn how to create and manage a standardized wir process using a pmis like pmweb. The description of activity or work. Find out the advantages of mir and the difference.
Source: www.smartsheet.com
What Is Work Inspection Request - Learn how to create and manage a standardized wir process using a pmis like pmweb. Learn what work inspection requests (wirs) are, why they are important, and how to create and manage them effectively. Learn what material inspection request (mir) is, how it works, and why it is important in construction projects. A wir form is a document that records.
Source: www.scribd.com
What Is Work Inspection Request - The description of activity or work. Learn what material inspection request (mir) is, how it works, and why it is important in construction projects. Learn what work inspection requests (wirs) are, why they are important, and how to create and manage them effectively. Work inspection report (wir) in construction is a quality control document that is submitted by the contractor.
Source: www.scribd.com
What Is Work Inspection Request - Learn how to use pmweb to create and manage work inspection requests (wir) for verifying and approving the work in place on construction projects. Learn how to create and manage a standardized wir process using a pmis like pmweb. The description of activity or work. Learn what material inspection request (mir) is, how it works, and why it is important.